Willkommen in der
Gemeinde Belp

Gemeindeinfo
Allgemein
12. Januar 2026
Verkehrsinfo
19. Dezember 2025

Bau
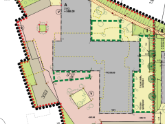
Öffentliche Planauflage – Änderung Überbauungsordnung ZPP Nr. I "Seftigenstrasse"27. Februar 2026Gemeindeinfo
Gemeindeversammlung vom 11. Dezember 2025 - Auflage Protokoll12. Januar 2026
Gemeindeinfo
Allgemein
Informationen aus dem Gemeinderat12. Januar 2026Gemeindeinfo
Verordnung über die privatrechtliche Anstellung und Funktionenentschädigung30. Dezember 2025

Flughafen









